Mihai Bravu metrou, vila P+2, NEMOBILATA, pretabila birouri,videochat

2.300€ / luna
ID:CCP3026  Bucuresti,  Mihai Bravu

Descriere casa vila

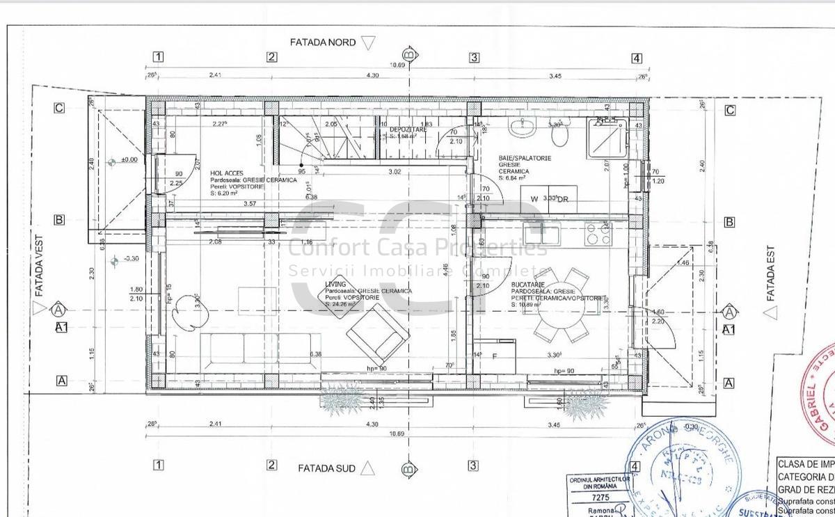
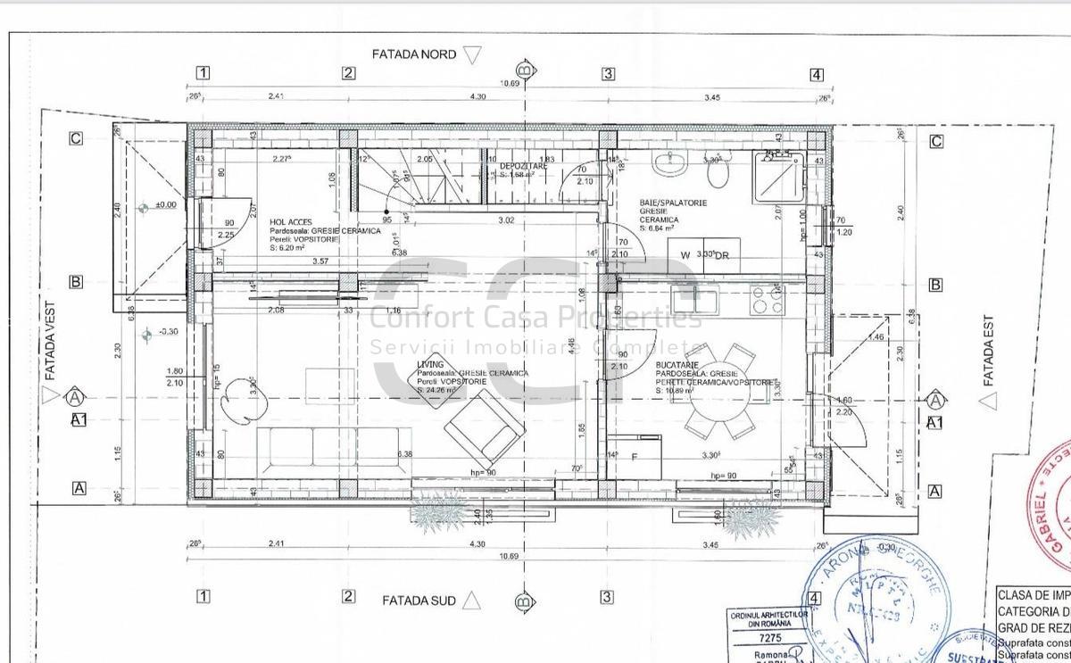
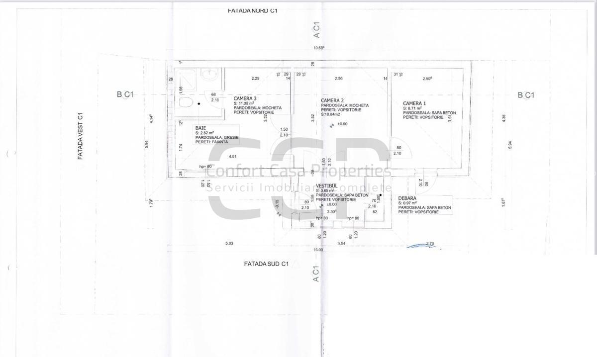
Mihai Bravu metrou, vila P+2, constructie 2024, finisaje superioare, libera, NEMOBILATA , 6 camere spatioase, 2 grupuri sanitare, bucatarie mare patrata mobilata,, CENTRALA PROPRIE, singur curte, situata in apropiere de metrou Mihai Bravu, Splaiul Unirii, Lidl, pretabila pentru videochat, centru medical, salon infrumusetare, birouri etc.Merita! LIBER!

Caracteristici casa vila

  • Numar Camere: 6
  • Zona: Mihai Bravu
  • Suprafata utila: 180 mp
  • Reper:
  • Strazi: Asfaltate, Iluminat stradal
  • Numar Dormitoare: 5
  • Tip casa: Individuala
  • Numar Bai: 2
  • Regim Inaltime: 2
  • Numar Bucatarii: 1
  • An Constructie: 2025
  • Suprafata Teren: 350 mp
  • Front: 15 ml / nr fronturi 1
  • Destinatie: Locuinta/Birou

Caracteristici generale casa vila

  •  Acces auto:Acces auto
  •  Acces internet:Cablu Fibra optica
  •  Acoperis:Lindab
  •  Aer Conditionat:Da
  •  Bucatarie:Da
  •  Calorifere:Da
  •  Clasa Energetica:B
  •  Contorizare:Contor electric Contor gaz
  •  Curte:Pavata
  •  Destinatie:Locuinta/Birou
  •  Electrocasnice:Aragaz Frigider
  •  Ferestre Casa:Term. PVC
  •  Geam baie:Da
  •  Incalzire Casa:Centrala Termica
  •  Izolatii termice:Exterior
  •  Materiale:Beton Armat Caramida Porotherm
  •  Mobilat:Nemobilat
  •  Pereti:Faianta Lavabil
  •  Plansee:Beton
  •  Podele:Gresie Parchet
  •  Stadiu Finisare:Finalizat
  •  Strazi:Asfaltate Iluminat stradal
  •  Teren imprejmuit:Teren imprejmuit
  •  Tip Casa:Individuala
  •  Tip Curte:Individuala
  •  Usa intrare:Metal
  •  Usi:PVC
  •  Utilitati:Curent trifazic Apa Canalizare Gaz Internet
  •  Vecinatati Spatii:Metrou Autobuz Zona comerciala Banca Cinema Benzinarie Piata Parc Mall Supermarket Restaurant/pub
  •  Zidarie:BCA

Harta

Tel: 0752010038 whatsapp